Belt conveyor
Last time, I introduced screw loader to everyone. And luckily, all of people are interested in it. So I want to introduce LTBC-belt conveyor to everyone this time. Although both of screw loader and LTBC-belt conveyor are conveying machines, they also have many differences. Today, I will introduce LTBC-belt conveyor from some main parts. I hope this article will help you how to choose LTBC-belt conveyor.


1. Introduction
1.1 Application
LTBC-belt conveyor is a kind of friction drive to transport materials in a continuous manner. It is mainly composed of frame, conveyor belt, idler, main roller, tensioning and transmission. It can transport materials in a certain line and forms a material transport process between the initial feeding point and the final unloading point. It can not only carry out the transportation of broken and scattered materials, but also carry out the transportation of finished materials. In combination with other equipment on the production line, a rhythmic flow line can be formed.
1.2 Scope of application
LTBC-belt conveyor can be used for forming a horizontal or inclined transport system with a single machine or united with other ones to meet the needs of different designs of the operation line according to the different transport process requirements.
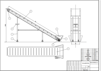
2. Mechanical structure and working principle
2.1 Mechanical structure
2.2 Working principle

The LTBC-belt conveyor is mainly composed of two end-point main rollers and a closed conveyor belt on which the belt is tightly packed. The main rollers that drives the conveyor belt to rotate is called the driving main roll.The other main roll is called the main roll which is only used to change the conveyor belt movement direction. The driving roller is driven by a motor combined with a reducer and the conveying belt is dragged by the friction between the driving roller and the conveying belt. The material is fed by the feeding end, falls on the rotating conveying belt and is transported to the unloading end by the friction of the conveying belt.
3. Operating instructions
3.1 Installation instructions
3.1.1 Preparation before installation
(1) Check that the frame is sturdy and the diagonal lengths of the frame must be equal.
(2) Check the body of each part of the support without deformation.
(3) Check whether there is foreign matter on the roller and belt wheel and do the cleaning work in time.
(4) Check whether the idler rotates flexibly and whether there is any damage.
(5) Check whether the tensioning device moves flexibly and set the tensioning device to the minimum.
3.1.2 Install
(1) The first step is to determine the center line. During installation, the non-coincidence degree between the center line of the frame and the longitudinal center line of the conveyor shall be less than 3mm and the relative elevation shall not exceed 2mm and the span shall not exceed 1.5mm.
(2) Frame installation, frame connecting rod connection, support device installation, the requirements of each roller (groove support device, refers to the middle roller) surface line should be in the same horizontal surface, so it must be leveled.
(3) Install the main roller and belt, connect the belt and bypass each roller, but do not close first, then install other auxiliary parts.
(4) The final alignment of the LTBC-belt conveyor. After the installation of the driving drum and idler frame, the center line and horizontal of the conveyor shall be finally found. Then the frame is fixed. After fixing, make belt tensioning preset.
3.2 Test operation instructions
3.2.1 Preparation before test
(1) Check installation is correct and all fasteners are loose.
(2) Check whether the lubrication of rotating friction parts is fine, it is strictly prohibited to operate without lubrication.
3.2.2 No-load test
The new machine or the rubber belt machine after overhaul shall be tested in the no-load test run before being put into production and use and the running time shall be at least for 1 hour. In the experiment, the tape should not slip, run off-track from ends, run off-track in the middle of time or run off-track to one side while being normal operation.
3.2.3 Full load test
When the new machine or the rubber belt machine after overhaul meets the technical requirements in the no-load test operation, the full load test shall be conducted for 4 hours. No malfunction shall occur during operation. Then it can be delivered for acceptance.
3.3 Operating instructions
Please check the items below before running the LTBC-belt conveyor:
The support of the head, tail and the whole LTBC-belt conveyor must be intact, firm and free of sundries.
Be sure the complete body idlers, rotation is flexible and H shelf is stable without deflection. The center of conveying belt should be consistent with the front and rear frame center.
Be sure the drum rotation is flexible, the fastener is firm and the bearing is well lubricated.
Be sure the belt cleaner is complete and in good condition and the belt cleaner is in good working condition.
Be sure integrity of tape joint without damage or belt deviation.
(6) Be sure tape tensioning device is complete, the device is under suitable tensioning and tape does not slip. Be sure all electrical equipment is in good condition of flexible, smooth signal and cable hanging neat.
(7) Check whether there are operators near the tape, contact with each other before sending signals before each boot.
4. Common fault and treating method
4.1 List of common faults and solutions
| Belt side skid | (1) Main roll position deflection.(2) The idler is not perpendicular to the l-longitudinal centerline of the t-russ.(3) Frame mounting is uneven or de-formed.(4) The blanking position is wrong.(5)The belt joint is long on one sid-e and short on the other. | (1) Adjust the roller.(2) Adjust the roller stand.(3) Flat foundation, straightening frame.(4) Place the feeding mouth baffle corr-ectly.(5) Reconnection. |
| Belt creep | (1)The belt is not tensioned enough.(2)The outer skin of the main roller is badly worn.(3)Excessive load or uneven blankin-g. | (1) Adjust the tensioning stroke.(2) Replace the outer cover of the mai-n roll.(3) Control Head. |
| Fracture belt | (1) Strap joint clip broken.(2) The baffle is damaged and the hard material falls into the belt gap.(1) Main roller is badly worn, protr-uding and puncturing the belt.(1) The hopper metal cut the belt.(1) Seriously deviated operation, the truss will damage the belt clip, res-ulting in belt tearing.(1) The squeegee rubber strip was b-adly worn and its metal frame cut through the belt. | (1) Replace the belt connector clip.(1) Repair or more slippery baffle skin.(1) Replace the main roll or the outer surface of the main roll.(1) Adjust the hopper.(1) Stop immediately and deal with bel-t deviation.(1) Replace rubber strip. |
| Bearing temperature too h-igh | (1) Excessive gap.(2) The amount of lubricating oil is not to-o much or too little within a reasonable range.(3) The lubricating oil is unqualified and contains impurities. Installation does not meet requireme-nts. | (1) Adjust clearance or replace bearing.(2) Adjustment of oil consumption.(3) Change lubricating oil.(4) Reinstall correctly as requi-red. |
| Spillage | (1) Overload operation.(2) Eccentric loading.(3) Belt side skid.(4) Severe wear failure of baffle. | (1) The control load is within the rated range.(2) Adjust the feed port.(3) Adjust the belt to avoid deviation.(4) Timely replacement of baffle. |
| Abnormal noise | (1) The main roll is seriously eccent-ric.(2) The two shafts of the coupling have different centers.(3) Main roll bearing damaged. | (1) Adjust the main roller bracket.(2) Click and reducer alignment.(3) Replace the bearing. |
5. Maintaining
In order to ensure the normal operation and daily normal use of the LTBC-belt conveyor. Careful maintenance plays a great role to the service life of the equipment and it is necessary to develop safe operation procedures and maintenance system to have regular repair and replacement of parts to prevent improper operation caused by equipment and personal accidents. The safety operation rules and reasonable maintenance system should be carefully formulated by the user according to the actual situation. The following considerations should be taken into account when formulating the maintaining system.
Under the normal use of the equipment conveyor shall not be used to complete additional tasks other than the required and is not allowed to overload else.
The passage to the emergency switch should be free of obstacles and check whether the switch is in good condition regularly.
Observe the reducer constantly and add lubricating oil in time. Replace the roller with rigid rotation or large axial momentum in time and continue to use after maintenance.
Clean the materials bonded to the surface of the supporting roller and the main roller: observe the peeling condition of the conveyor belt surface and repair in time.
The conveyor should be repaired regularly. The equipment should be checked and repaired quarterly, semi-annually and biennially. During the overhaul, all parts of the LTBC-belt conveyor should be removed, cleaned and worn parts replaced.
6. Notes
(1) No one shall traverse or traverse the conveyor while it is in operation. Conveyors are not allowed to take people.
(2) Make sure there are no sundries and other coverings on conveyor reducer, motor and other devices.
(3) Under normal operating conditions, any personnel shall not directly contact the moving parts and keep a distance. Please do not wear loose clothing during operation, especially collar, cuffs and trousers.
Thanks for you reading this article. Please contact me if you have any questions or advice about this article. Thanks!


